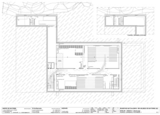
moa: ville de bayonne
maîtrise d’œuvre: w-architectures
opération: construction des réserves du musée
mission: assistance à maîtrise d’œuvre en phases projet, co-traitant
budget: 4 millions €
surface: 2.300 m2
abandonné par la moa en phase det
maîtrise d’ouvrage: Ministère de la Culture
maîtrise d’œuvre: Architecture Studio / Demathieu Bard Immobilier (mandataire)
opération: construction du pôle de conservation, d’espaces d’exposition et d’accueil du public
maîtrise d’ouvrage: Région des Hauts de France
maîtrise d’œuvre: Berger & Berger
opération: création d’un nouvel établissement, réhabilitation d’hôtels anciens & création d’une aile neuve
mission: assistance à maîtrise d’œuvre, co-traitant
budget: 7,5 millions €
surface: 5.340 m2
phase: apd
maîtrise d’ouvrage: ville de mont-de-marsan
maîtrise d’œuvre: Vurpas architectes (mandataire)
opération: rénovation et extension du musée
mission: assistance à maîtrise d’œuvre et scénographie, sous-traitant
budget: 8,5 millions €
surface: 3.838 m2
phase apd
maîtrise d’ouvrage: ville de saint-gilles
maîtrise d’œuvre: w-architectures
opération: rénovation et extension du musée
mission: assistance à maîtrise d’œuvre, sous-traitant
budget: 4,8 millions €
surface: 1.030 m2
phase apd
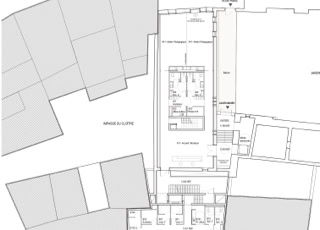
moa: grande chancellerie de la légion d’honneur
maîtrise d’œuvre: h2o architectes
opération: transformation en centre d’archivage et de formation
mission: assistance à maîtrise d’œuvre en phase projet, co-traitant
budget: 2,7 millions €
surface: 940 m2
phase det
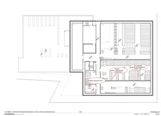
moa: rennes métropole
maîtrise d’œuvre: w-architectures
opération: construction des réserves du musée
mission: assistance à maîtrise d’œuvre en phase projet, co-traitant
budget: 11,5 millions €
surface: 6.430 m2
phase det
maîtrise d’ouvrage: ville d’abbeville
maîtrise d’œuvre: w-architectures (mandataire)
opération: rénovation et extension du musée
mission: assistance à maîtrise d’œuvre, sous-traitant
budget: 13 millions €
surface: 4.340 m2
phase apd
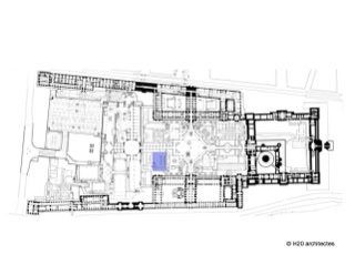
maîtrise d’ouvrage: musée rodin
maîtrise d’œuvre: H2O architectes
opération: rénovation
mission: assistance à maîtrise d’œuvre, co-traitant
budget: 2,8 millions €
surface: 3.215 m2
phase: apd